All Retail
Опубликовано

В центре Одессы готовится к открытию ТЦ "Кадорр" (+фото)

В первом квартале 2014 года в Одессе планируется открытие нового торгового центра «Кадорр».

Новый торговый центр находится по ул. Екатерининская, 27 - всего в одном квартале от ул. Дерибасовской и обещает составить существенную конкуренцию действующим ТЦ «Европа» и «Афина».

- ТЦ «Кадорр» будет расположен в зоне интенсивно развитого стрит-ритейла. Дерибасовская улица и прилегающие к ней два-три квартала, по сути, являются бутиковой зоной, где стоимость аренды торговых площадей составляет от 50 до 150 долл. за кв.м.. В ТЦ "Кадорр" стоимость аренды будет сопоставимой, - считает эксперт розничного рынка, маркетолог Антон Терехов.

Само здание, расположенное по ул. Екатерининская, 27 будет являть собой многофункциональный комплекс, включающий в свой состав ТРЦ и гостиницу премиального уровня. Это будет первый опыт подобного совмещения в Одессе. 

Девятиэтажное здание "Кадорра" возведено на месте снесенного объекта дореволюционной постройки. Инвестором проекта выступает компания «Кадорр», принадлежащая украинскому бизнесмену сирийского происхождения Аднану Кивану. В частности, «Кадорр» известна в Одессе тем, что после наступления экономического кризиса была одной из немногих компаний, которые продолжали интенсивно заниматься проектами в сфере жилищного и коммерческого строительства.

Застройщиком проекта ТЦ "Кадорр" выступает одесское предприятие «Будова», известное своим сотрудничеством с ритейлером «Таврия В» (в частности «Будова» возводила премиальный ТРЦ «Сады победы»).

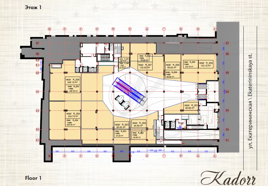
Отметим также, что общая площадь здания составит 23 500 кв. м. Здесь также предусмотрен двухэтажный подземный паркинг.

В торговой галерее ТЦ "Кадорр" будет находится около 90 магазинов. В частности, на -1 этаже ожидается открытие продуктового супермаркета площадью 600 кв.м. Информации о будущем арендаторе пока не нет.

С первого по четвертый этажи ТЦ будут располагаться бутики среднего и премиального сегмента. На пятом  этаже – фуд-корт и детская развлекательная зона. 6-8 этажи – бутик-отель на 70 номеров

Также известно, что руководство ТЦ "Кадорр" ведет интенсивные переговоры с брендами премиального сегмента и большая часть площадей будет заполнена уже на момент открытия объекта.

×

Через социальные сети

или

Через социальные сети

или